Dual Dwelling Design & Site Planning
Binningup, WA
Structhaven recently completed a dual dwelling design project in Binningup, Western Australia, delivering a practical and buildable solution for a sloping residential site.
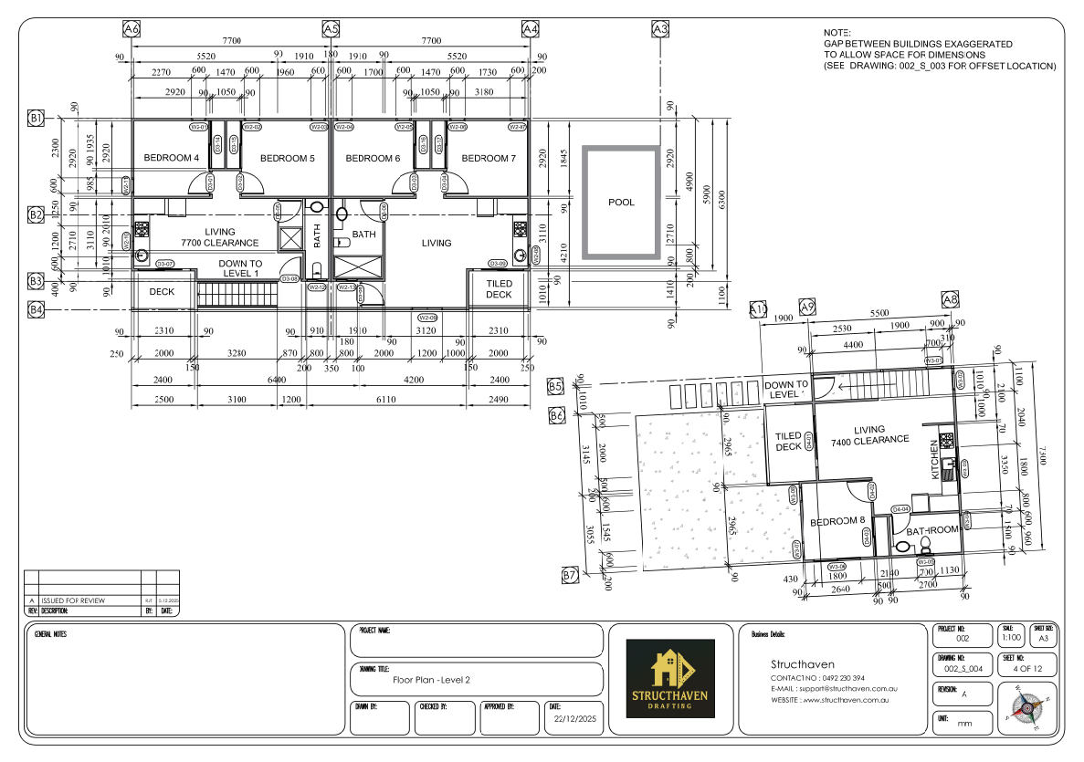
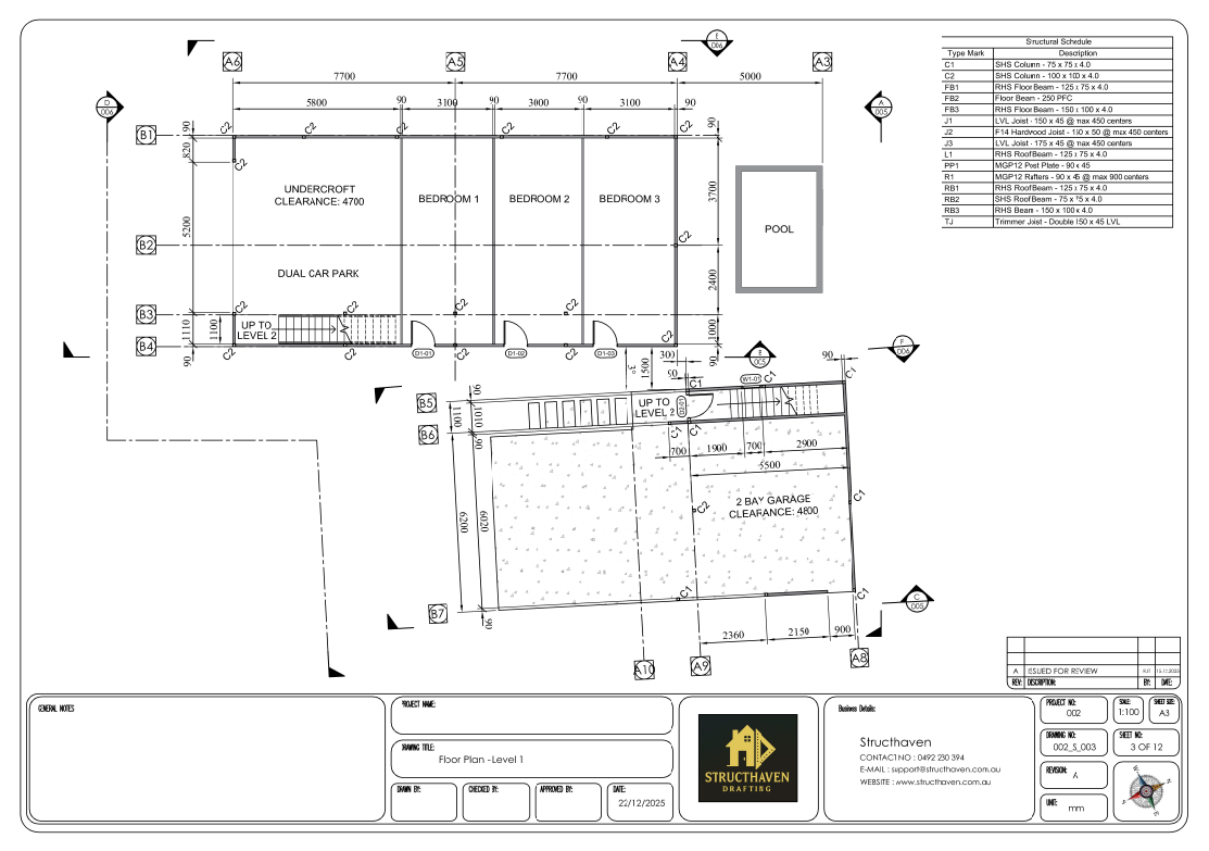
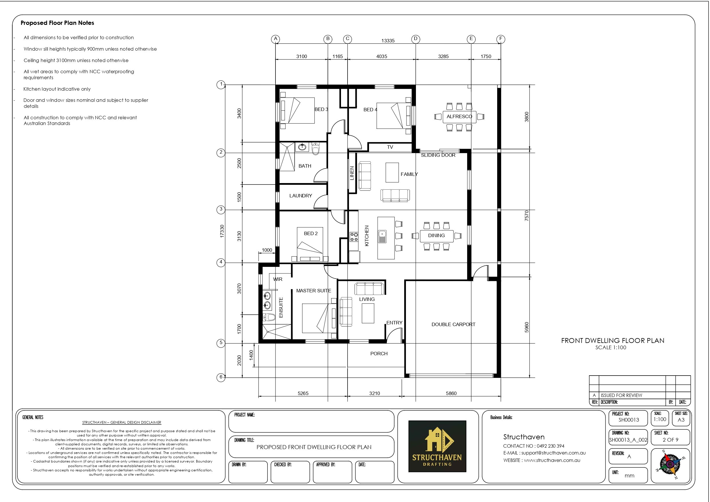
This project involved full site planning, drafting, and design documentation for a dual occupancy development, including a 4 bedroom, 2 bathroom main dwelling and a separate secondary dwelling (granny flat).
A key challenge was managing the natural fall of the land. This was resolved through a split-level design approach, with finished floor levels set at FFL 14.2 and FFL 15.5, supported by a retaining wall design strategy to create clean, usable building pads.
Our scope included:
Site layout and development planning
Dual occupancy design and drafting
Retaining wall design coordination
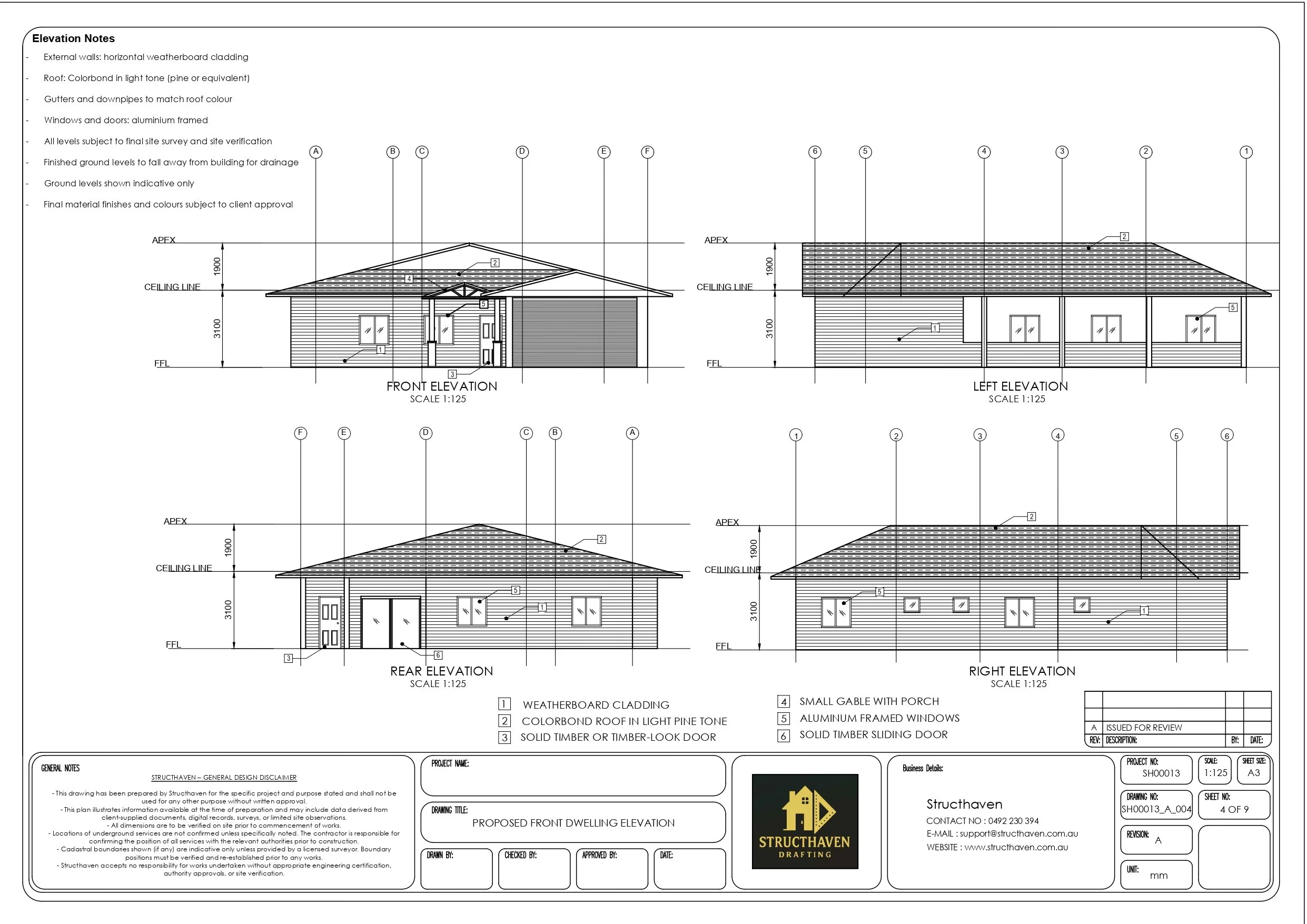
Floor plans and elevations
Building pad and level design
Development Approval (DA) ready drawings
The outcome is a functional, construction-ready design that balances compliance, usability, and cost-efficiency — ensuring the site works in real conditions, not just on paper.
At Structhaven, we specialise in residential drafting, site planning, and development design across Western Australia, delivering fast, clear, and buildable solutions for homeowners, developers, and builders.
📍 Binningup, WA
📐 Dual Dwelling | Site Planning | Retaining Design | Drafting Services
Evacuation Diagrams Harmony Hall & Temple
Malak, Northern Territory
Structhaven completed a detailed evacuation diagram package for the Hindu Society of Northern Territory, covering both Harmony Hall and the adjoining temple facility in Malak.
The project delivered a clear, compliant solution aligned with AS 3745 – Planning for Emergencies in Facilities, ensuring safe and efficient evacuation across both buildings.
This project involved the preparation of multiple location-specific evacuation diagrams, designed to provide clear direction of travel, accurate fire equipment identification, and consistent emergency communication throughout the site.
Key considerations included primary and secondary exit path identification, accurate placement of fire safety equipment, and location-specific “YOU ARE HERE” indicators. Each diagram was prepared with a focus on clarity, readability, and suitability for public environments, ensuring full alignment with AS 3745 requirements.
Within Harmony Hall, evacuation diagrams were positioned across key areas including the main hall space, entry and exit points, and amenities zones, ensuring occupants can quickly identify the nearest exit regardless of their location within the building.
The temple required a more refined layout, with diagrams positioned at the main internal area, front entry, and rear exit. Care was taken to maintain clear direction of travel while working within the fixed internal structure and defined movement paths.
The project was completed through remote coordination, using supplied drawings and a guided walkthrough to deliver an efficient and accurate result.
This project highlights Structhaven’s capability in delivering evacuation diagrams and fire safety drafting across a range of building types throughout Australia.
Shipping Container Compound Design
Victoria Industrial Infrastructure Project
Structhaven completed a detailed shipping container compound design for an industrial site in Victoria, delivering a functional, scalable, and compliance-ready solution tailored to remote and high-exposure environments.
This project involved the integration of multiple shipping containers, including two 20ft containers and one 40ft container, arranged around a central usable space to maximise efficiency and accessibility. The design incorporated a structural steel roof system, providing full coverage across the compound while allowing for solar panel integration and long-term durability.
A key focus of the project was environmental resilience and self-sufficiency. The compound includes:
10,000L water storage tanks connected via downpipe systems
Solar panel-ready roofing system with appropriate fall and mounting provisions
Colorbond® cladding and roofing, ensuring durability in exposed conditions
Compliance with BAL 29 fire safety and ember-proofing requirements for bushfire-prone areas
The internal layout was designed around a central deck system, elevated to provide practical access and usability between containers. Structural elements such as pad footings, concrete slabs, and framing systems were coordinated to allow for engineering certification and constructability.
Additional detailing included:
Integrated decking systems with CCA-treated sleepers and structural supports
Sliding access points and openable zones for flexible use
Utility planning including underground drainage and electrical conduit pathways
Coordination-ready documentation for builder, engineer, and approval processes
This project highlights Structhaven’s capability in delivering container-based infrastructure design, industrial drafting services, and remote compound layouts across Australia.
Whether for mining, agricultural, or industrial applications, Structhaven provides fast, direct, and practical drafting solutions that bridge concept through to construction-ready documentation.
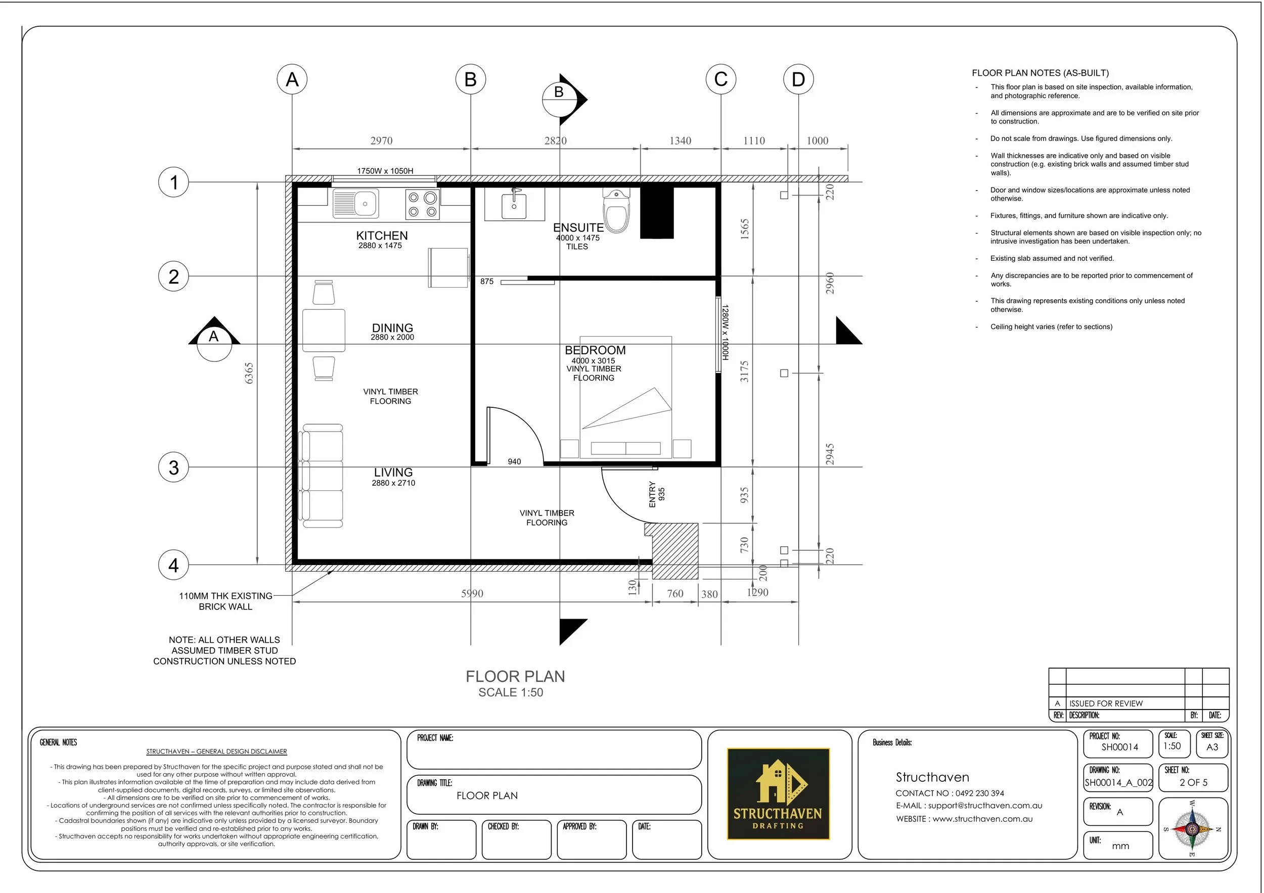
Coastal Granny Flat As-Built Documentation
Bunbury, Western Australia
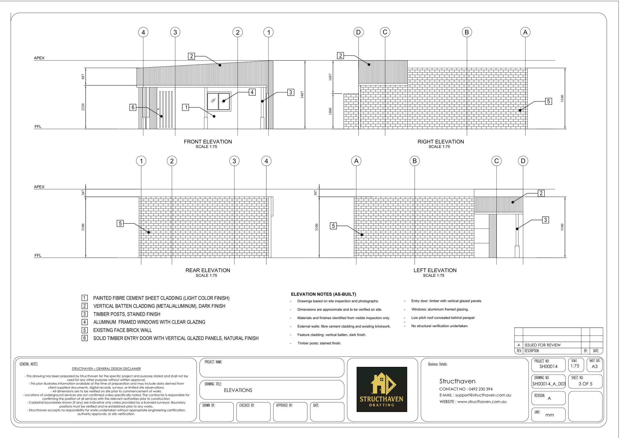
Structhaven completed a detailed set of as-built architectural drawings for a coastal granny flat, documenting the conversion of an existing garage into a self-contained residential space. The scope included a full site plan, internal floor plan, elevations, building sections, and indicative structural elements, all prepared based on site measurements, sketches, and photographic reference.
The drawings were developed to support council requirements for retrospective approval, clearly capturing the current built condition including the front extension, internal layout, ceiling slopes, and visible construction systems. This project demonstrates Structhaven’s capability in delivering as-built documentation, granny flat drafting, and retrospective building plans, providing practical and submission-ready drawing packages across Bunbury and the South West of Western Australia.
Sound Attenuated Housing Design
Davenport, Western Australia
Structhaven was engaged to provide drafting and design services for a sound attenuated housing unit located in Davenport, Western Australia.
The project involved the creation of as-built fabrication drawings for an existing sound attenuator unit to be used in an industrial setting. Our team worked closely with the client to ensure that the design met all necessary acoustic, structural, and regulatory requirements.
Working from the existing unit dimensions, Structhaven developed a comprehensive drawing set that included detailed site plans, internal baffle layouts, and the positioning of perforated stainless steel liners. The drawings were prepared in full compliance with the client's specifications for sound attenuation and structural integrity.
The design incorporates an internal baffle system, stonewool insulation, and 316 stainless steel perforated liners to optimize soundproofing and acoustic performance. Special attention was paid to the ventilation requirements of the unit to ensure proper airflow without compromising sound attenuation performance.
Additional documentation was prepared for perforated stainless liners, intermittent tack welds, and structural steel components to ensure all elements were correctly positioned and aligned for optimal function and ease of fabrication.
Swimming Pool, Retaining Walls & Patio Extension
Gerlorup, Western Australia
Structhaven was engaged to prepare architectural drafting and site development documentation for a residential property in Gelorup, Western Australia.
The project involved coordinating multiple site elements including a new in-ground swimming pool, limestone retaining walls, patio extension, driveway layout and full site level integration.
Working from the feature survey and existing dwelling layout, Structhaven developed a coordinated drawing set suitable for council review and engineering certification, ensuring all new structures were positioned correctly within the building envelope, boundary setbacks and septic exclusion zones.
The design integrates an 8.6m × 4.4m in-ground heated pool, surrounding timber decking, and a gable roof patio extension, while maintaining safe clearances to the existing septic system and site levels.
Additional documentation was prepared for limestone retaining walls up to 1.05m high, pool safety fencing compliant with AS1926, and driveway grading.
The completed drawing package provides a fully coordinated residential site development plan, allowing the project to progress efficiently through engineering review and construction planning.
Mezzanine Floor & External Deck
Hideaway Bay, QLD
Structhaven was engaged to prepare drafting and documentation for a new internal mezzanine floor and external deck structure within an existing engineered shed located at Hideaway Bay, Queensland.
The objective of the project was to maximise the functionality of the existing shed by introducing a mezzanine level configured as a large bedroom, while also extending the usable outdoor space with a new external deck and roof structure connected to the building.
Working from the existing shed engineering documentation, Structhaven developed a coordinated drawing set to integrate the new structural elements without altering the primary portal frame system.
The design incorporated hot-dip galvanised steel I-beam framing for both the mezzanine and deck structures, allowing for durable coastal performance and simplified fabrication and assembly during construction.
Tourist Park Development Application
Cunderdin, Western Australia
Structhaven completed a comprehensive set of Development Application (DA) drawings for the installation of two new transportable cabins (dongas), along with the existing structures on the site. The scope included the site development for the proposed cabins, ensuring that all elements aligned with local council regulations.
The drawings were designed to ensure efficient site flow, clear setbacks, and appropriate stormwater management. This project demonstrates Structhaven's expertise in delivering site plans, floor plans, and elevations that comply with the local Shire’s requirements for transportable cabin developments.
The drawings included:
Site Development Plan: Detailing property boundaries, proposed cabins, setbacks, parking, and stormwater drainage.
Floor Plans for Cabins: Showing the layout, room dimensions, and internal details for both proposed cabins.
Elevations for Cabins: Providing the external view, building height, and materials for the proposed cabins.
Steep Driveway Drainage Plan–Shire Submission
Structhaven was engaged to prepare a detailed stormwater drainage plan for a steep rural driveway in Roelands, Western Australia, within the Shire of Harvey.
The site presented a significant natural ground fall, requiring careful grading of a 150mm uPVC stormwater line to manage surface runoff while maintaining practical excavation depths. The drainage design incorporated multiple collection points spaced along the 100-metre driveway alignment, with local soakwells positioned to control discharge and prevent erosion.
Due to the natural 1:4 ground slope across the site, the stormwater pipe grade was designed to follow the terrain while ensuring buildability and practical installation. The system included:
Long section drainage profile
Stormwater pipe invert levels and grades
Soakwell locations and spacing
Surface flow direction
Shire-compliant drainage notes page
Connection strategy for lawful discharge
The project required balancing steep terrain conditions with compliant stormwater management for Shire submission, ensuring runoff is contained within the property boundary and directed appropriately.
Structhaven specialises in rural drainage plans, steep site stormwater design, and Shire submission documentation across Western Australia.
Roelands, Western Australia
Shop Fit-Out - Korean Restaurant
Bunbury, Western Australia
Structhaven completed a detailed set of commercial shop fit-out and architectural drawings for a Korean hospitality restaurant in Bunbury. The scope included front-of-house dining and service areas, a fully coordinated commercial kitchen layout, storage and back-of-house rooms, and supporting architectural floor plans suitable for construction and internal planning.
The drawings were prepared to support restaurant fit-out requirements, focusing on efficient workflow, clear customer circulation, and practical separation between dining and kitchen areas. This project demonstrates Structhaven’s capability in delivering restaurant fit-out drawings, commercial drafting services, and architectural plans for hospitality businesses across Bunbury and the South West of Western Australia.
Double-Storey Dwelling with Single-Unit Residence
This project provides complete design and drafting services for a double-story residential property on a new block of land. We offer detailed designs, floor plans, elevations, roof bracing, and concrete slab layouts for the main dwelling and a 1-bedroom unit at the back. Our plans ensure compliance with local council and Australian standards, delivering a structurally sound and functional design for both residential living and potential rental income.
Mission Beach, Queensland

